_stavení

300 m2 výměra budovy
1 284 m2 výměra pozemku

cena: 14 000 000

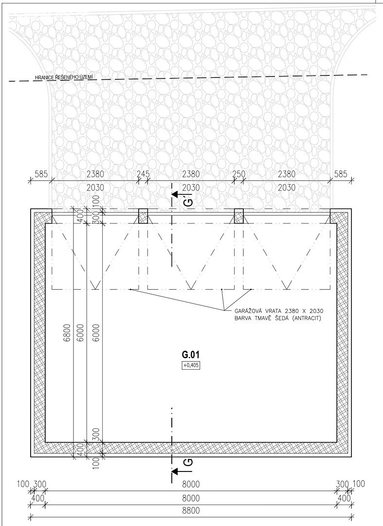
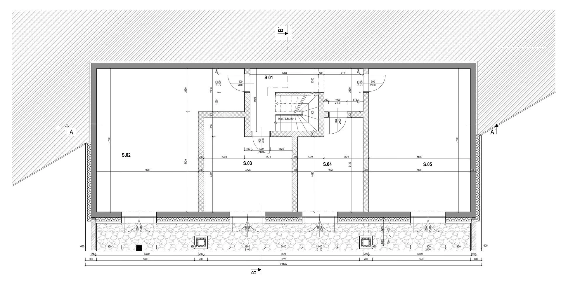
Exkluzivně přímo od majitele prodáváme pozemek s vypracovanou studií na RD se třemi bytovými jednotkami + samostatnou garáží vč. stavebního povolení.

Tři bytové jednotky na velkorysém pozemku v srdci Jizerských hor.